
Planta Procesadora
AVE MARÍA
Con más de 3.000 m2 el proyecto de la planta procesadora Ave María fue un gran reto para mi en el cual tuve la misión de realizar el diseño arquitectónico, interiorismo y paisajismo de esta gran obra, además de una representación grafica impecable con el objetivo de encontrar a los inversionista y con ello materializar este sueño.
villa
CAMPESTRE
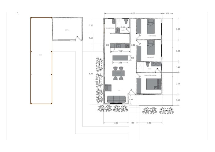
Don Saúl y Doña Cristina llegaron a mi de manera inesperada y apenas se enteraron de mi trabajo no dudaron ni un segundo en confiarme su gran sueño, tener una casa en el campo, ellos ya contaban con el terreno y habían comenzado los primeros pasos en la construcción, sin embargo necesitaban visualizar ese proyecto, así que me dispuse a trabajar en conjunto con ellos para darle forma a cada una de las ideas que ellos habían estado teniendo para la casa de sus sueños.
CASA
7
La renovación de una casa es un gran proyecto para cualquier familia, que puede llegar a ser abrumador y en ocasiones no se sabe por donde comenzar, ese fue el caso de la revocación de la casa 7, proyecto en el cual tuve la misión de guiar a mis clientes en el proceso además de hacer la representación en planos y renders que permitirían visualizar las ideas para su nuevo hogar.
LOBBY DEL
conjunto residencial
MAZATLAN
Cuando vivimos en un edificio nuestro hogar comienza desde el lobby.
Por tal motivo en el proyecto de remodelación del lobby del conjunto residencial mazatlán tuve la responsabilidad de diseñar un espacio que reflejara la bienvenida al hogar de las personas que habitan en la edificación además de que fuese confortable y elegante.
OFICINAS DE
JFK
COOPERATIVA FINANCIERA
En pro mostrar la nueva imagen de JFK al publico en cada uno de sus puntos de atención a nivel nacional, tuve la oportunidad de colaborar en el equipo de trabajo para darle vida a este gran proyecto a nivel nacional, plasmando en cada render cada una de las ideas y propuestas del equipo.
OTROS TRABAJOS